نمای ویلای مدرن با سقف‌های مورب و استخر پوشیده از برف، ترکیبی از طراحی معاصر در بستر طبیعت زمستانی
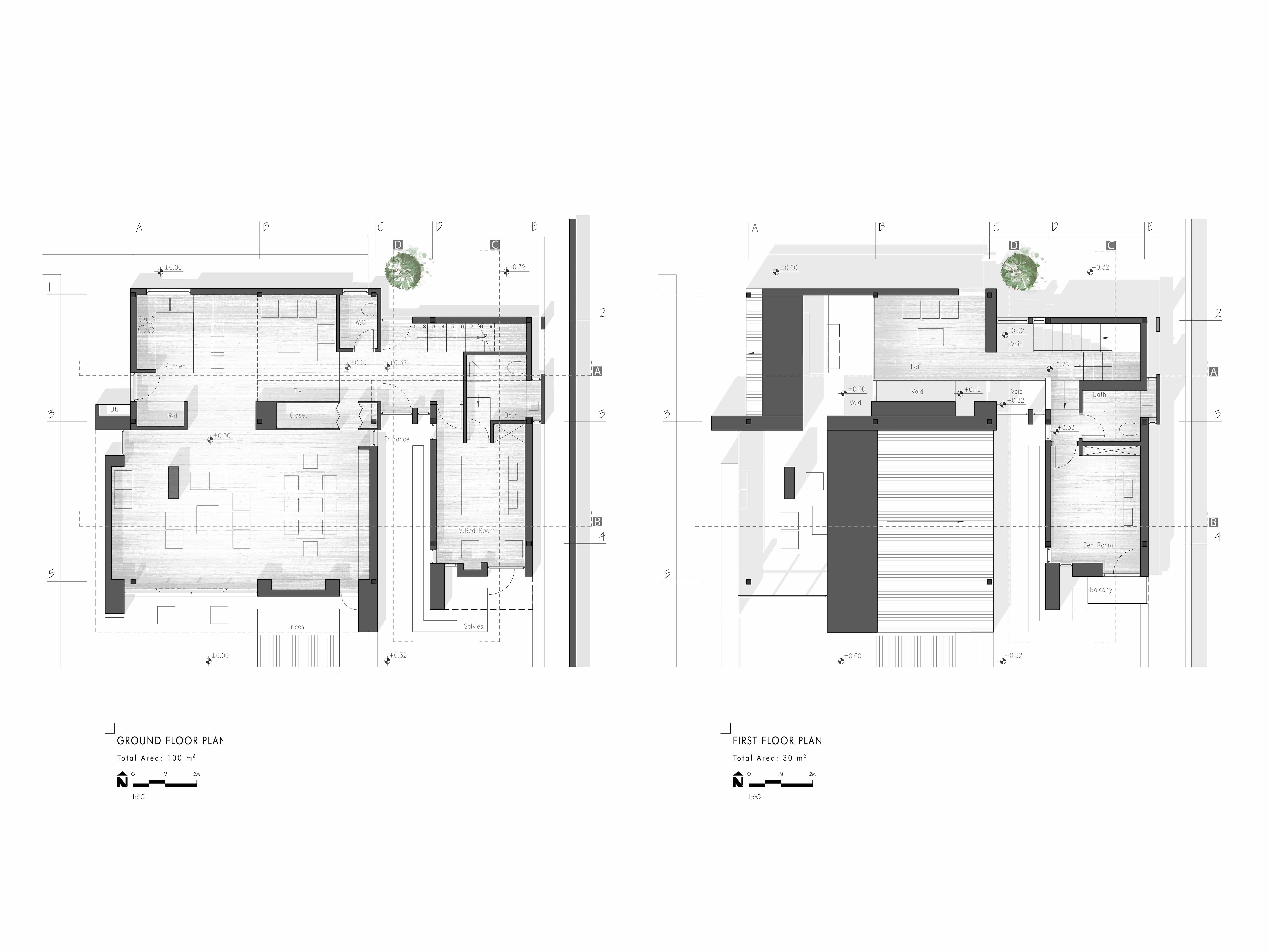
<p dir="rtl">طراحی <em>ویلای چمن</em> با توجهی دقیق به شرایط موجود در سایت آغاز شد؛ شرایطی که شامل یک واحد مسکونی قدیمی و یک استخر بود—عناصری که قصد داشتیم حفظ شوند.</p><p dir="rtl">برای تعریف یک محور معماری جدید، در انتهای مسیر ورودی درختی از گونه سدر کاشته شد و مسیر ورودی بازطراحی گردید. این محور به عنوان ستون فقرات طرح عمل کرد و حجم دوم در سمت مقابل آن افزوده شد. اگرچه فرم اولیه خانه به صورت سنتی و اولیه بود، تلاش ما بر این بود که این الگو را با تغییر در شیب بام‌ها و حذف تقارن بازتعریف کنیم. این تغییرات باعث شدند تا فضاهای عمومی و خصوصی بر اساس نیازهای عملکردی از یکدیگر تفکیک شوند.</p><p dir="rtl">شفافیت نما میان دو حجم، دیدی مستقیم به درخت سدر از نقطه ورود به سایت ایجاد می‌کند و پیوندی بصری و فضایی میان معماری و منظر برقرار می‌سازد.</p>

پروژه های مشابه