نمای شب خانه مدرن با نورپردازی داخلی گرم، فرم مثلثی و پنجره‌های سرتاسری در محله‌ای کوهستانی و برفی با نورهای شبانه اطراف.

خانه چهارگاه

دماوند
نمای ویلا
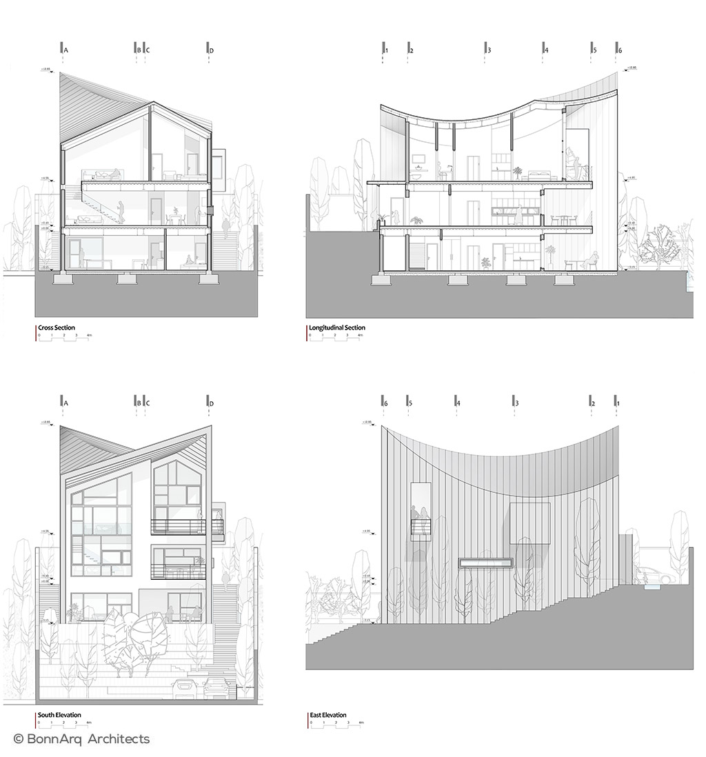
<h2 dir="rtl"><strong>توصیفِ خانه‌ی چهارگاه در چهار “گاه”:</strong></h2><p dir="rtl">گاهِ ۱: موقعیت کوهستانی “مُشاء”، این “باغ-شهر” کوهپایه‌ای دماوند، که تابستانی خوش آب و هوا و زمستانی سرد و خشن دارد، ایده اولیه طراحی را شکل داد و ما را به سمت پوششی یکپارچه از جنس ورق فلزی هدایت کرد، متریالی که از دیرباز تا امروز در معماری بومی منطقه به وفور دیده می شده؛ این پوشش در جداره شرقی با منافذی از هسته مرکزی خانه به سمت درختان تبریزیِ باغ کناری گشوده شد، اما در غرب برای محافظت از کج باران فصلی و بوران غربی، به تمامی بسته شد.</p><p>&nbsp;</p><p dir="rtl">گاهِ ۲: پروتوتایپِ فُرمیِ سقف شیروانیِ مرسوم در منطقه، در طرح ما، از محور مرکزی خود جا‌به‌جا شد و در وضعیت قطری قرار گرفت تا دشت های جنوب شرقی و ارتفاعات شمالی را رؤیت‌تر پذیر کند. همزمان محور قطری از بیرون به داخل تقعر یافت تا طبق برنامه، فضاهای متنوعی را در درون خانه پدید آورد.</p><p>&nbsp;</p><p dir="rtl">گاهِ ۳: در تبادل افکار با مالک، خانه را در دو فضای مستقل برنامه ریزی کردیم: نخست: بخش متصل به زمین، که از جنوب با باغ میوه‌ی در حال طراحی در ارتباط نزدیک قرار گیرد و خانواده از آن به عنوان فضای تفریح و ورزش بهره بَرَد، و دیگری: دوپلکسی در بالا، که ارتباط فضای درون را پیوسته با منظر اطراف برقرار کند و فضای اصلی استراحت، پخت و پز و نشیمن خانواده باشد. بخشی از فضای نشیمن طبقه اول دوپلکس به شکل ووید، با تحدب داخلی سقف بلند در ارتباط است.</p><p>&nbsp;</p><p dir="rtl">گاهِ ۴: در نهایت گفتگوی میان پوسته و هسته‌ی بنا، به سازشی انجامید در هیأت هندسه‌ای هذلولی، که در اتصال هسته و پوسته‌ی یکپارچه متجلی است. و در نتیجه‌ی آن، خانه را در جهت شمال-جنوب در امتداد کرت بندی باغ میوه قرار می دهد، و نیز شفافیت نمای جنوبی، نور و زیبایی دشت را به داخل می کشاند و همزمان در جداره‌های شرقی و غربی، نیروهای طبیعت را مهار می کند.&nbsp;</p>

پروژه های مشابه

خانه چهارگاه | معمار نو