فضای نشیمن و آشپزخانه مدرن با طراحی پلان باز، کابینت چوبی و مشکی، جزیره مرکزی - Modern living room and kitchen with an open-plan design wooden and black cabinets a central island.

خانه‌ای مدرن 436 در ایندیانا استریت

امریکا
نشیمن
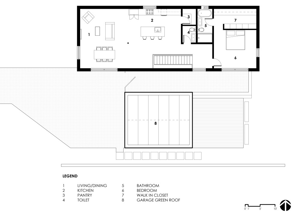
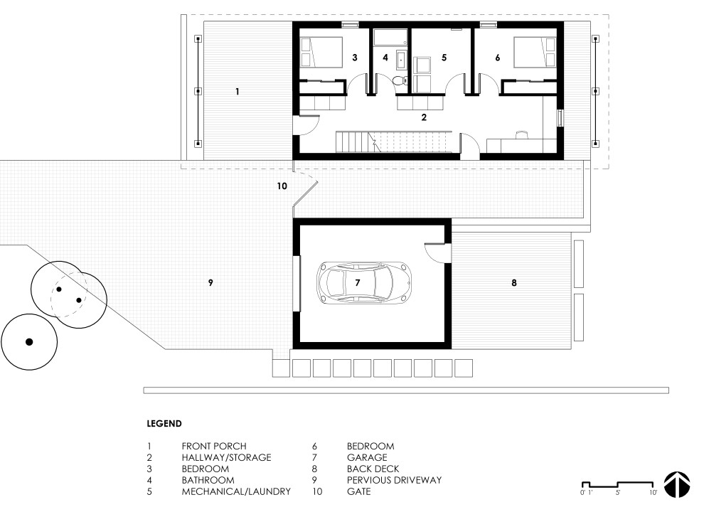
<p dir="rtl">خانه‌ای مدرن در خیابان ایندیانا 436 در لورنس کانزاس، حاصل تلاش دانشجویان استودیو 804 در دانشگاه کانزاس است که به‌طور کامل از پایه طراحی و اجرا شده است. این خانه در محله‌ی جذاب Pinkney و در قلب شهر قرار دارد، جایی که درختان بالغ سایه‌بان زیبایی بر فضای اطراف ایجاد کرده‌اند. موقعیت مکانی آن، دسترسی آسانی به امکانات شهری ارزشمند فراهم می‌کند؛ تنها چند بلوک با بیمارستان مرکزی لورنس و مرکز شهر فاصله دارد؛ جایی پرجنب‌وجوش با فروشگاه‌ها، رستوران‌ها و فعالیت‌های فرهنگی متنوع.</p><p dir="rtl">در نزدیکی این خانه، رودخانه‌ی کانزاس قرار دارد که به‌عنوان یک مسیر ملی آب‌نوردی شناخته می‌شود و پارک‌های آبی آن تا مرکز شهر امتداد دارند. مسیر دوچرخه‌سواری Lawrence Loop، یک کمربند سبز شهری ۲۲ مایلی، نیز در دسترس ساکنان این خانه قرار دارد. همچنین دسترسی پیاده و اتصال به سیستم حمل‌ونقل عمومی، امکان زندگی بدون خودرو را فراهم می‌سازد. این خانه، تلاقی زیبایی از تاریخ شهر لورنس و آینده‌ی طراحی پایدار است.</p><h3 dir="rtl">طراحی با استانداردهای LEED پلاتینیوم</h3><p dir="rtl">خانه‌ی 436 ایندیانا با بالاترین سطح استانداردهای طراحی پایدار یعنی LEED پلاتینیوم از شورای ساختمان‌سازی سبز ایالات متحده (USGBC) ساخته شده است. این خانه، هفدهمین پروژه‌ی استودیو 804 است که موفق به دریافت این گواهینامه شده. مأموریت استودیو 804 کاهش اثرات منفی زیست‌محیطی و بهبود کیفیت زندگی و محیط است.</p><p dir="rtl">استودیو 804 یک تجربه‌ی طراحی و ساخت کامل و عملی برای دانشجویان کارشناسی ارشد معماری در دانشگاه کانزاس است. این مؤسسه‌ی غیرانتفاعی، پیشرو در طراحی پایدار محسوب می‌شود و تاکنون 17 پروژه‌ی LEED پلاتینیوم، یک پروژه‌ی طلایی و سه پروژه‌ی گواهی‌شده توسط Passive House آمریکا را به انجام رسانده است.</p><h3 dir="rtl">ویژگی‌های پایدار خانه</h3><p dir="rtl"><strong>انرژی تجدیدپذیر:</strong><br> سقف خانه مجهز به 16 پنل خورشیدی 535 واتی است که توان تولید برق مورد نیاز خانه را تا حد زیادی تأمین می‌کنند. انرژی مازاد نیز در شبکه ذخیره می‌شود تا در زمان عدم تابش خورشید مورد استفاده قرار گیرد.</p><p dir="rtl"><strong>عایق‌کاری:</strong><br> مطابق با دستورالعمل‌های USGBC، عایق‌های حرارتی این خانه 20٪ بیشتر از حد کدهای ساختمانی رایج است. دیوارها دارای R-value در بازه‌ی ۳۰ تا ۳۹ هستند و سقف نیز حدود R-60 را ارائه می‌دهد.</p><p dir="rtl"><strong>لایه‌های کنترل:</strong><br> استفاده از لایه‌های باکیفیت کنترل هوا، بخار و آب، مانع نفوذ رطوبت و هوا به داخل ساختمان می‌شود. خانه همچنین تست درب‌بلور را با موفقیت پشت سر گذاشته که نشانه‌ای از عایق‌بندی هوایی مناسب است.</p><p dir="rtl"><strong>در و پنجره‌ها:</strong><br> پنجره‌ها و درهای سه‌لایه با کارایی بالا به حفظ انرژی و تهویه‌ی طبیعی کمک می‌کنند. برخی پنجره‌ها نیز از شیشه‌های بازیافتی پرده‌ای هستند.</p><p dir="rtl"><strong>پوشش داخلی:</strong><br> تمام مصالح داخلی دارای میزان بسیار پایین VOC (ترکیبات آلی فرار) هستند.</p><p dir="rtl"><strong>نمای تهویه‌پذیر (Rainscreen):</strong><br> استفاده از سیستم نمای تهویه‌پذیر باعث بهبود عملکرد حرارتی و مدیریت بهتر آب می‌شود. مصالح نمای خانه قابل بازیافت هستند.</p><p dir="rtl"><strong>پوشش بیرونی:</strong><br> سیستم نمای کورتن و Richlite دوام بالا و نگهداری آسانی برای ساکنین فراهم می‌کند.</p><p dir="rtl"><strong>روشنایی و برق:</strong><br> تمام چراغ‌ها از نوع LED با رتبه Energy Star هستند. نورپردازی بیرونی طوری طراحی شده که آلودگی نوری شبانه را به حداقل برساند.</p><p dir="rtl"><strong>لوازم خانگی:</strong><br> تمام وسایل آشپزخانه دارای رتبه Energy Star و تجهیزات بهداشتی نیز دارای تأییدیه Water Sense هستند. سیستم آب گرم توسط پمپ هیبریدی حرارتی تأمین می‌شود که نزدیک‌ترین فاصله را با خروجی‌ها دارد.</p><p dir="rtl"><strong>مدیریت آب‌های سطحی:</strong><br> موزاییک‌های قابل نفوذ در مسیر ورودی، از ایجاد روان‌آب‌های مضر جلوگیری می‌کنند. همچنین یک باغ بارانی در شرق ساختمان، روان‌آب‌های سقف و زهکشی محیط را جذب می‌کند.</p><h3 dir="rtl">استفاده از مصالح بازیافتی</h3><p dir="rtl">استودیو 804 با نگهداری مصالح بازیافتی در انبار خود، از دور ریخته شدن آن‌ها جلوگیری می‌کند. شیشه‌های سه‌لایه‌ای که در پروژه استفاده شدند، اشتباهاً با ابعاد نامناسب برای پروژه‌ای دیگر ساخته شده بودند. گلدان‌های فلزی کورتن در حیاط پشتی از باقی‌مانده‌ی نمای ساختمان ساخته شده‌اند. گچ‌برگ‌های اضافی سال گذشته و کاشی‌های اهدایی نیز در این پروژه مورد استفاده قرار گرفتند. تمامی قالب‌بندی‌های بتنی نیز مانند همیشه، دوباره استفاده شده‌اند.</p>

پروژه های مشابه