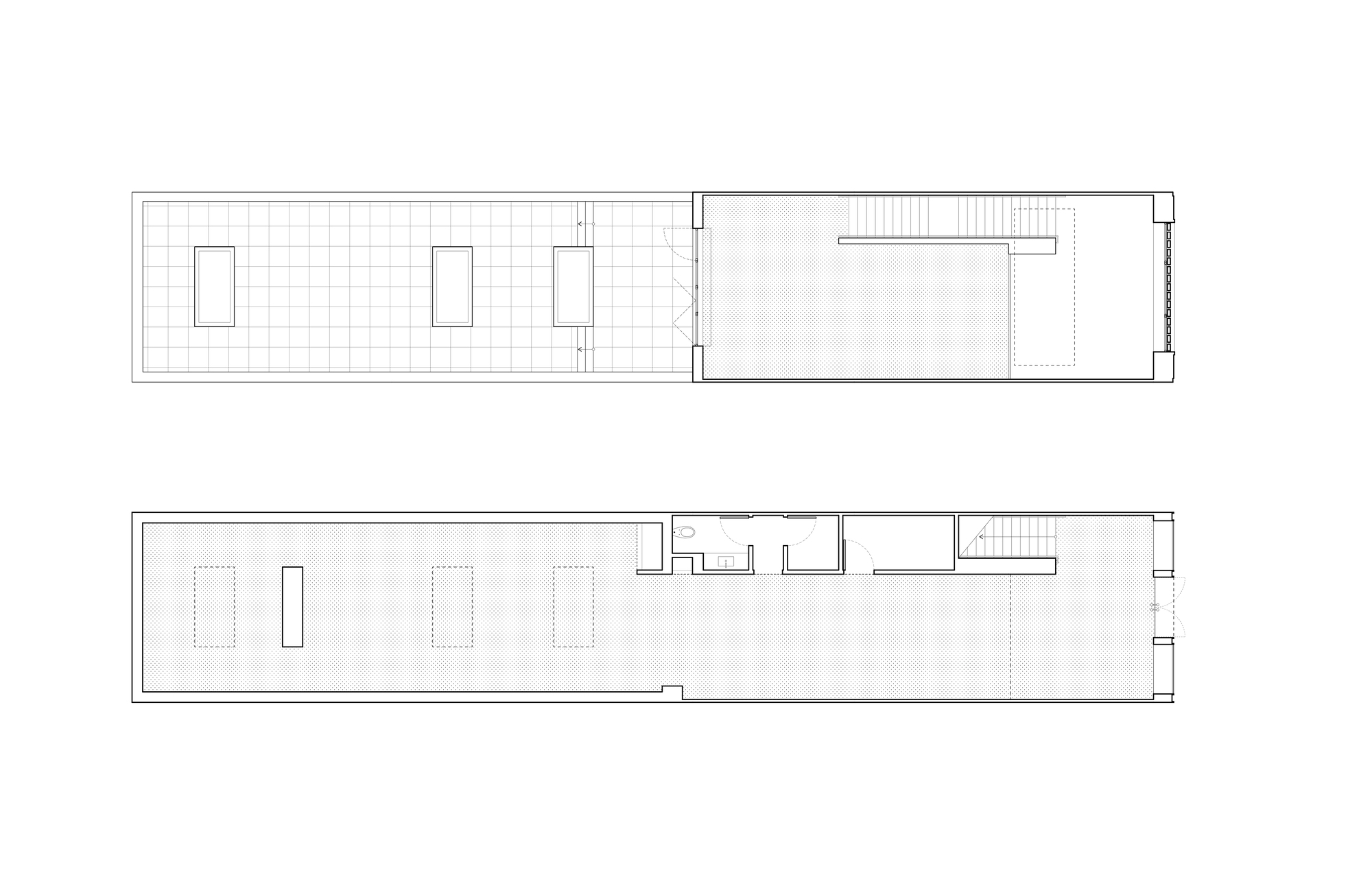
تصاویر پروژه
دیگر پروژه های Mahdis Noriani
پروژه های مشابه
موزه Talking Machines طراحی شده توسط UMA Collective
Majid Hallajpour
نمایشگاه OEZER طراحی شده CUN DESIGN
Majid Hallajpour
Hortensia Herrero Art Center طراحی شده توسط ERRE arquitectura
Majid Hallajpour
LANTERN طراحی شده توسط OMA
Mahdis Noriani
apm Gallery in Haikou GAOXINGLI طراحی شده توسط Dazhou And Associates
Mahdis Noriani
Whitestone Gallery Beijing 798 طراحی شده توسط Kengo Kuma & Associates
Mahdis Noriani
Gallery Home in Gran Via, Granada طراحی شده توسط Annona + Ana Frias
Mahdis Noriani
Simões de Assis Art Gallery طراحی شده توسط Arquea Arquitetos
Mahdis Noriani
Gentil Carioca gallery طراحی شده توسط Canoa Arquitetura
Mahdis Noriani
Original BTC Taipei طراحی شده توسط Soar Design Studio
Mahdis Noriani