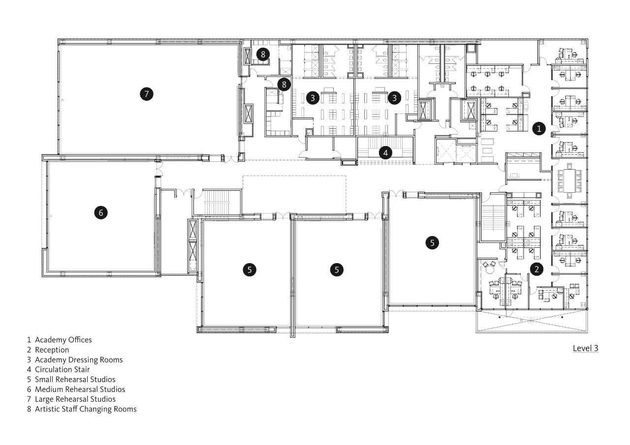
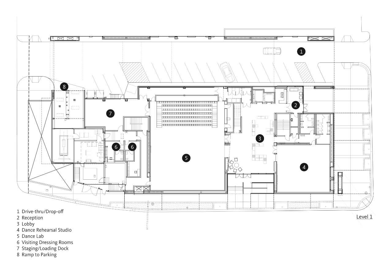
تصاویر پروژه
دیگر پروژه های Mahdis Noriani
پروژه های مشابه
Dance House Helsinki طراحی شده توسط JKMM Architects + ILO architects
Mahdis Noriani
National Dance Theater طراحی شده توسط ZDA - Zoboki Design and Architecture
Mahdis Noriani
English National Ballet طراحی شده توسط Glenn Howells Architects
Mahdis Noriani
Ballet Memphis طراحی شده توسط archimania
Mahdis Noriani
Ballet am Rhein طراحی شده توسط gmp Architects
Mahdis Noriani
Centre Culturel Lesigny طراحی شده توسط Atelier208
Mahdis Noriani
Y Ballet School طراحی شده توسط y+M design office
Mahdis Noriani