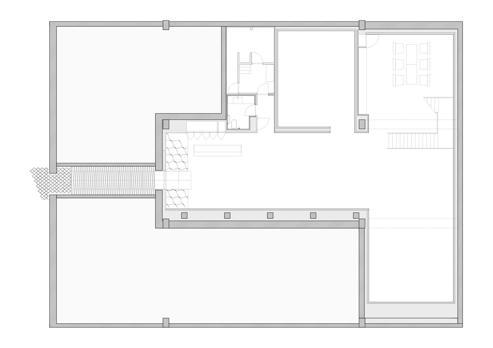
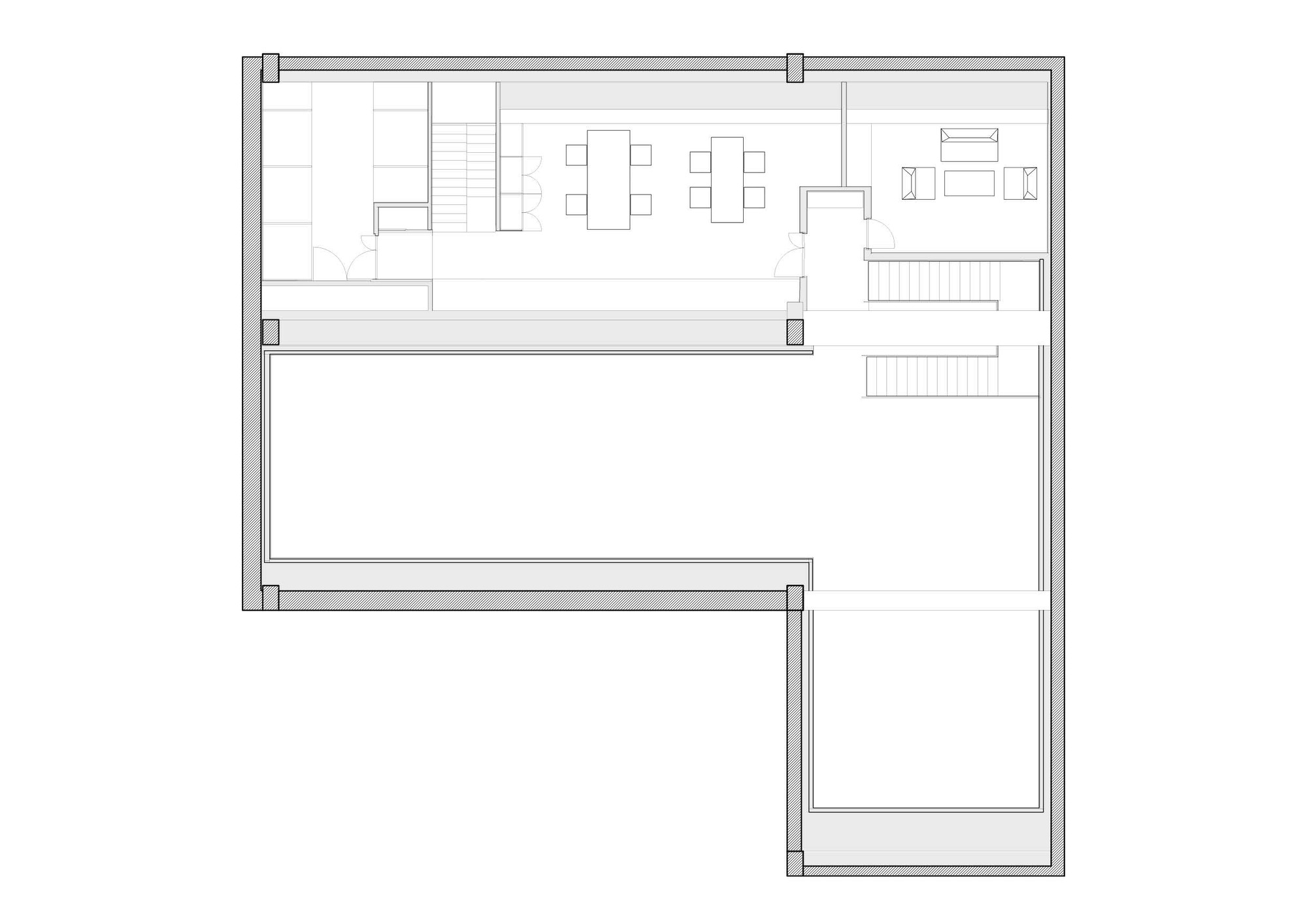
Whitestone Gallery Beijing 798 طراحی شده توسط Kengo Kuma & Associates

چین
Beijing 798 Art Zone در اصل پردیس کارخانه ای بود که در دهه 1950 با کمک اتحاد جماهیر شوروی و آلمان شرقی ساخته شد و به سبک باهاوس برای تولید تجهیزات الکترونیکی طراحی شد. از دهه 2000، این خیابان به عنوان یک خیابان هنری احیا شد و به منطقه ای تبدیل شد که گالری های تأثیرگذار از سراسر جهان را در خود جای داده است. ما اولین گالری سنگ سفید را در سرزمین اصلی چین در این منطقه 798 طراحی کردیم، به دنبال گالری در تایپه و هنگ کنگ.

پروژه های مشابه

Whitestone Gallery Beijing 798 طراحی شده توسط Kengo Kuma & Associates | معمار نو