کتابخانه Beijing 751 طراحی شده توسط Do Union Architecture

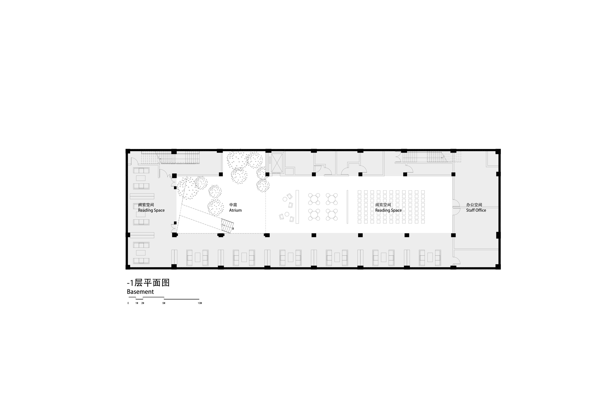
کتابخانه 751 پکن/ DO UNION. Do Union کتابخانه 751 را طراحی کرد که با بقایای صنعتی ادغام می شود. منطقه هنری 751-798 بزرگترین منطقه هنری در چین و محل اصلی هفته مد و هفته طراحی پکن است. در دهه 1950 با کمک آلمان شرقی تأسیس شد و در ابتدا یک کارخانه بزرگ قطعات الکترونیکی را در خود جای داد. کتابخانه 751 در انتهای جاده 798، جاده اصلی منطقه، رو به لوکوموتیو پلازا واقع شده است. محل اولیه یک استخر باقیمانده شستشوی خاکستر از کارخانه، با جرثقیل در بالا برای انتقال خاکستر زغال سنگ بود. پس از سال 2010، استخر و جرثقیل شستشوی خاکستر متوقف شد، و سایت بسته شد و رابط تجاری فعال 300 متری خیابان 798 منتهی به لوکوموتیو پلازا را قطع کرد.

پروژه های مشابه

کتابخانه Beijing 751 طراحی شده توسط Do Union Architecture | معمار نو