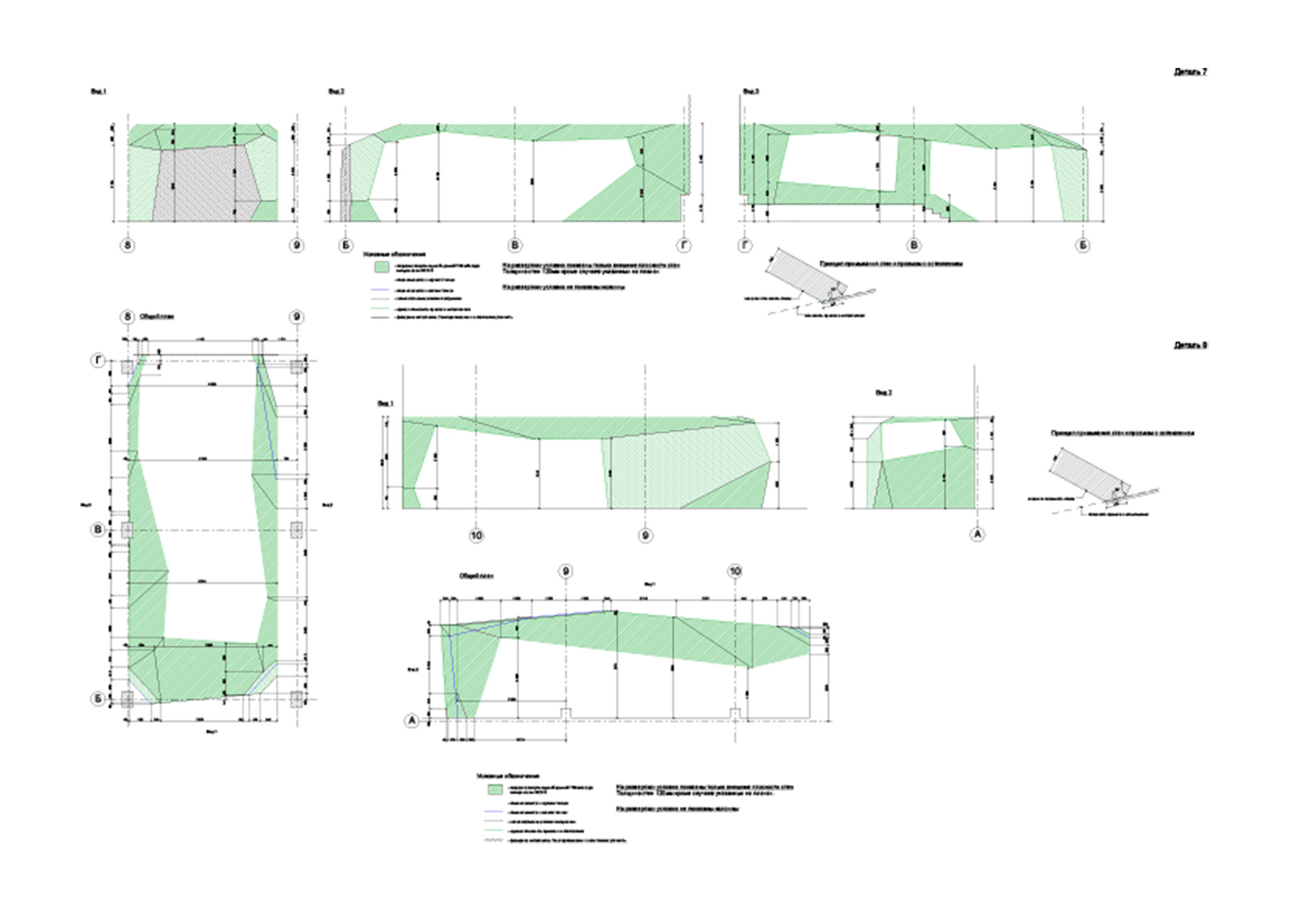
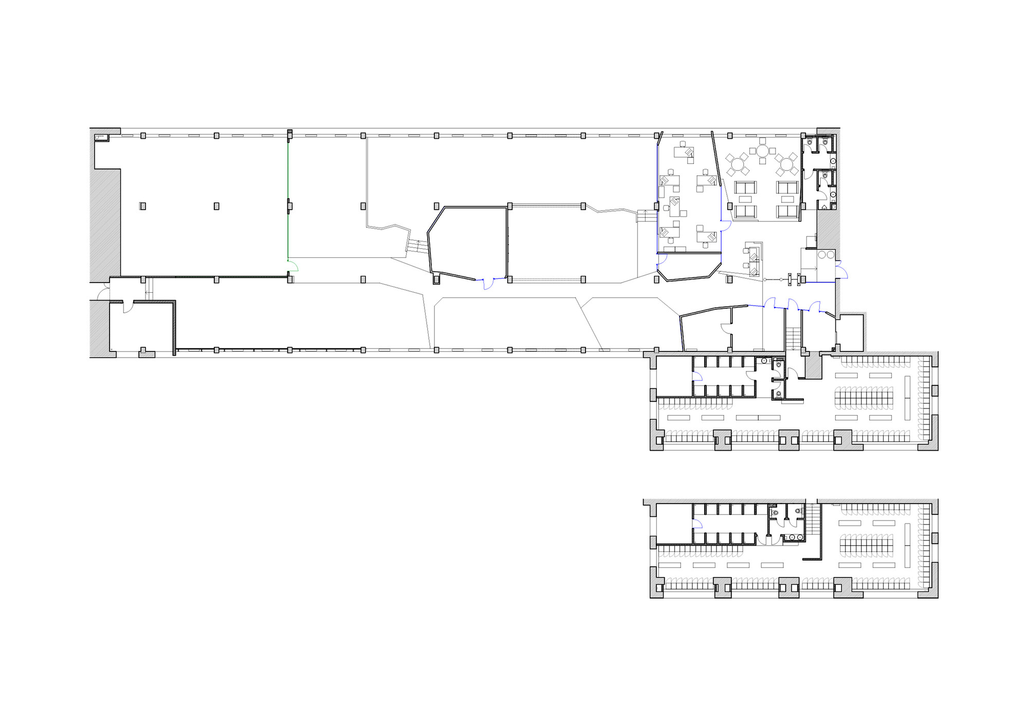
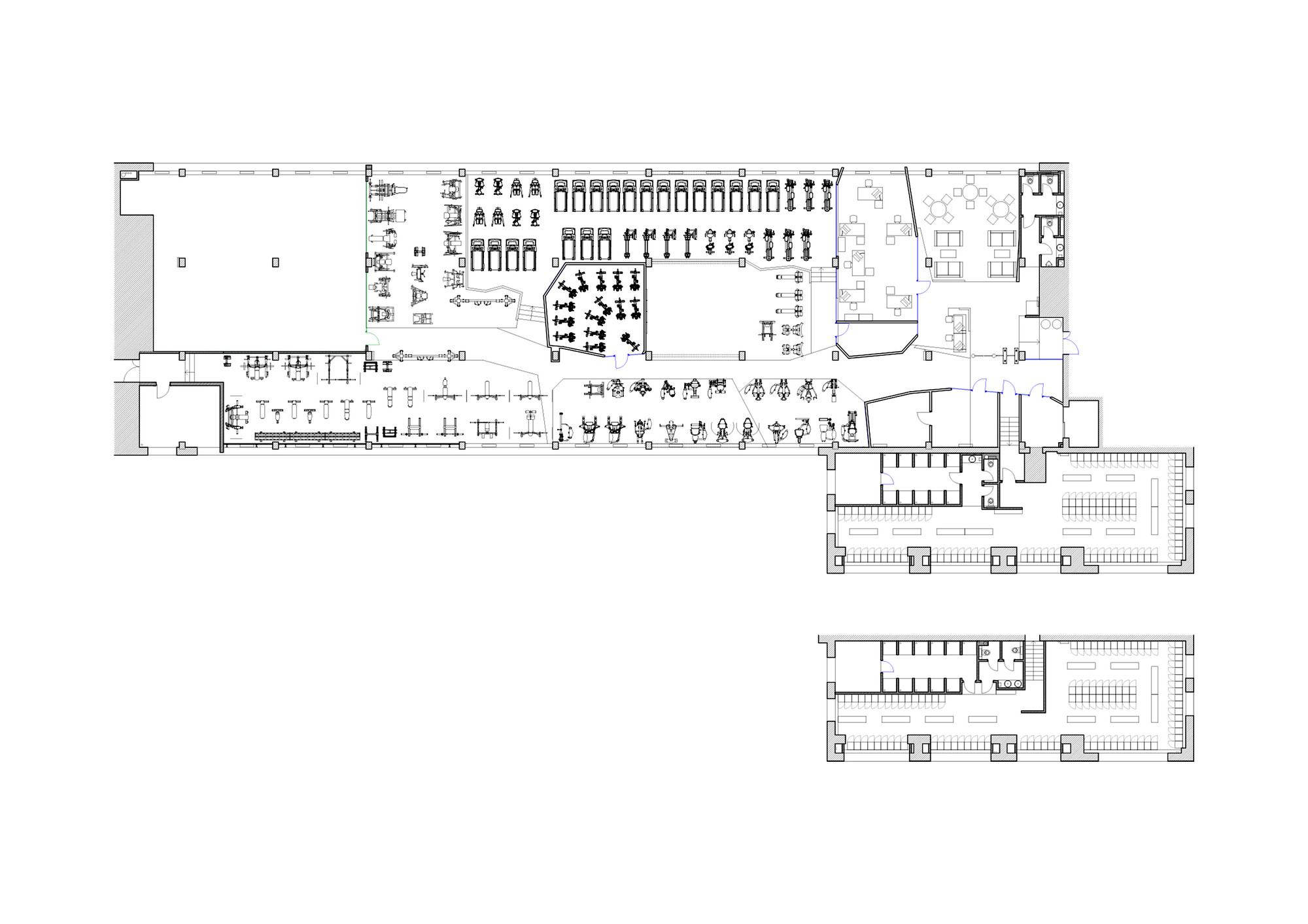
Smena Fitness Club طراحی شده توسط Za Bor Architects

پروژه های مشابه

Smena Fitness Club طراحی شده توسط Za Bor Architects | معمار نو