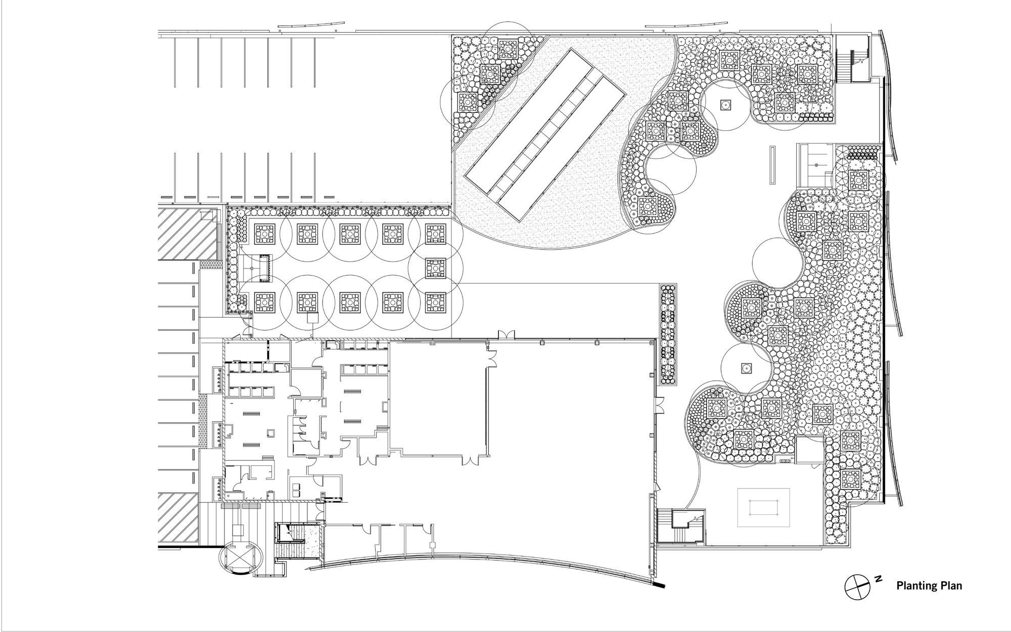
تصاویر پروژه
دیگر پروژه های Mahdis Noriani
پروژه های مشابه
باشگاه Under Armour Connected Fitness طراحی شده توسط Bohlin Cywinski Jackson
Mahdis Noriani
UC Riverside Student Recreation Center Expansion طراحی شده توسط Cannon Design
Mahdis Noriani
Times Property Staff Activity Center طراحی شده توسط C&C DESIGN CO., LTD.
Mahdis Noriani
Sport and Fitness Center for Disabled People طراحی شده توسط Baldinger Architectural Studio
Mahdis Noriani
Smena Fitness Club طراحی شده توسط Za Bor Architects
Mahdis Noriani
Sports Hall Sveti Martin طراحی شده توسط SANGRAD
Mahdis Noriani
241 Sports Center Hector Berlioz طراحی شده توسط Dietmar Feichtinger Architectes
Mahdis Noriani