پیست اسکی Nordic طراحی شده توسط Durisch + Nolli Architetti

سوئیس
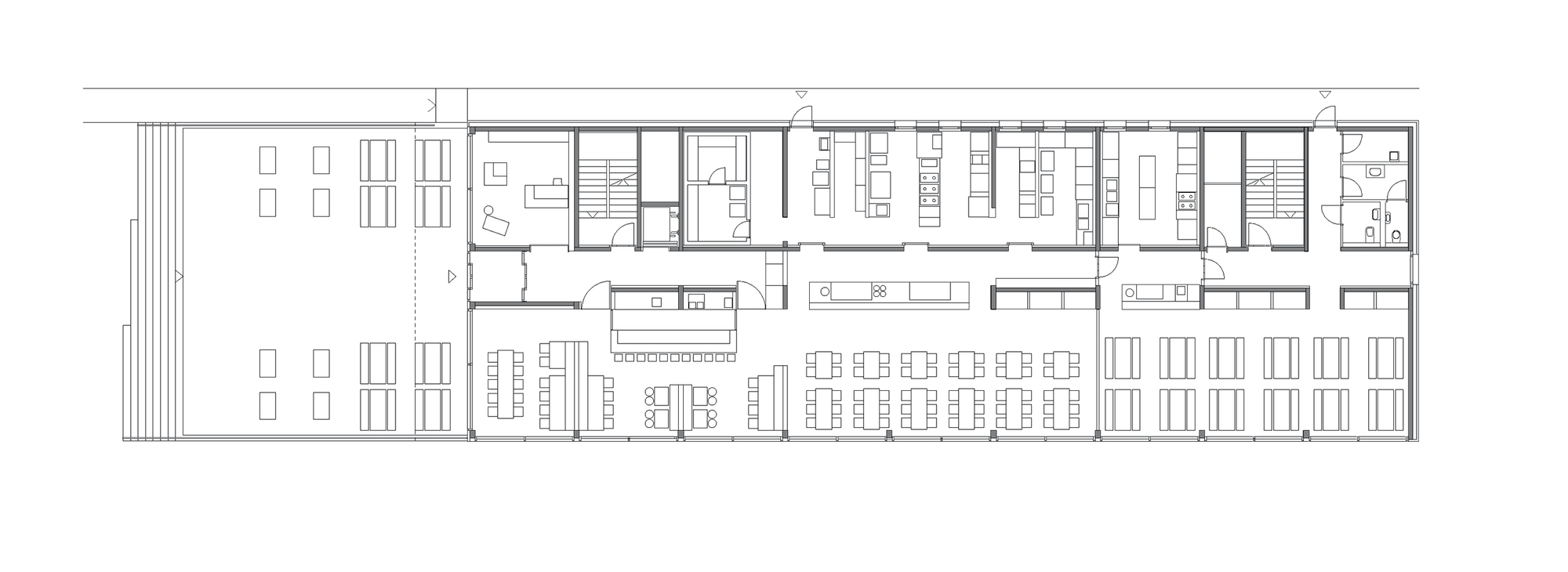
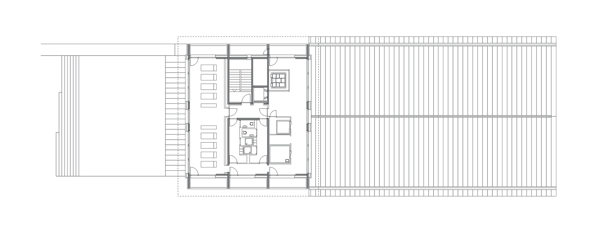
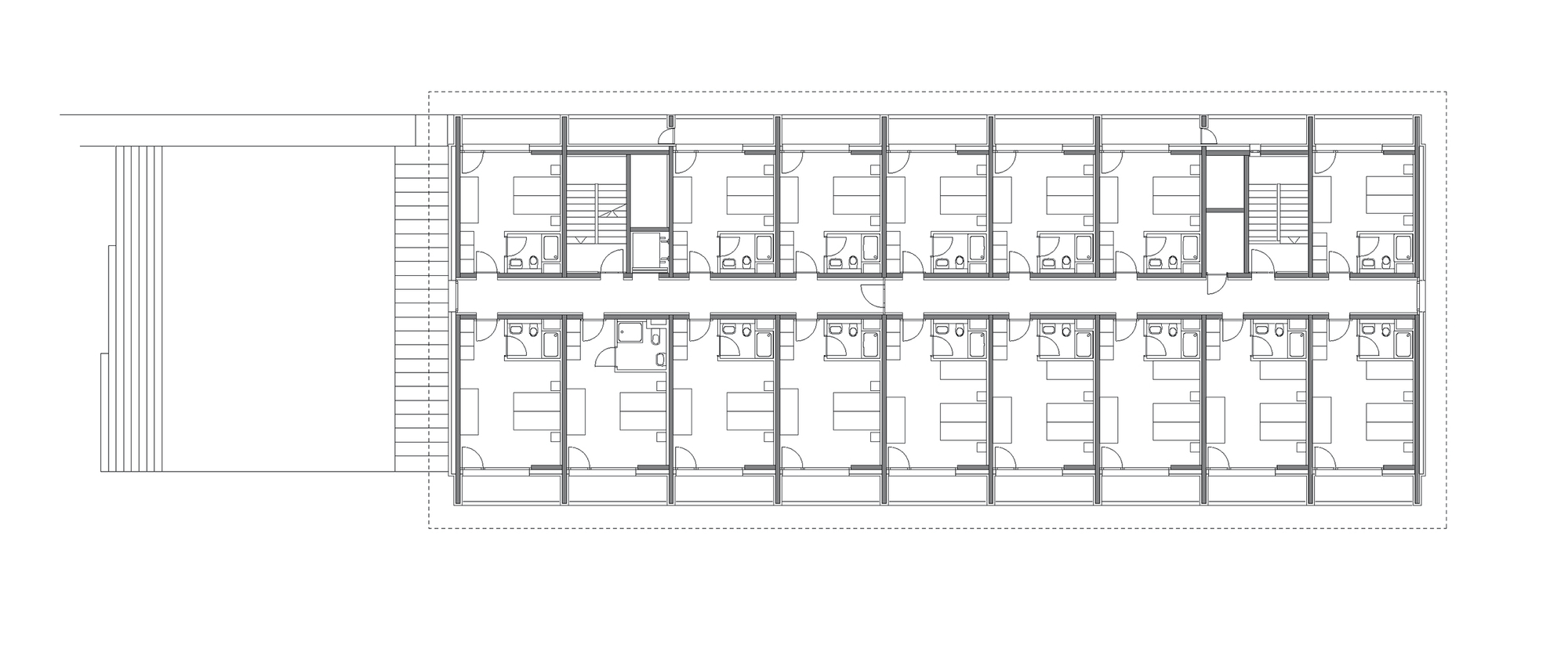
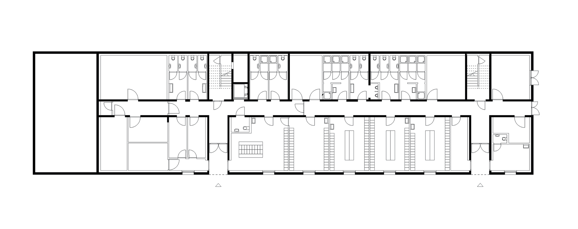
مرکز اسکی نوردیک کامپرا که در منظره‌ای باشکوه با ویژگی‌های خاص نوردیک قرار دارد، مجهزترین مرکز در کوه‌های آلپ سوئیس برای اسکی صحرایی است. دشت کامپرا نشان دهنده یک محیط رودخانه ای و باتلاقی با اهمیت ملی است که در سطح فدرال محافظت می شود. این سازه از دهه 1970 از پناهگاه اصلی باشگاه اسکی سیمانو گسترش یافته است، که در طول زمان ساختمان های ناامن متعددی در اطراف آن اضافه شده است. ارتقای منطقه اطراف موضوع اصلی پروژه است که از طریق یک ساختمان جدید با تأکید بر جوهر بافت و ایجاد تعامل طبیعی با چشم‌انداز اطراف به وقوع می‌پیوندد.

پروژه های مشابه