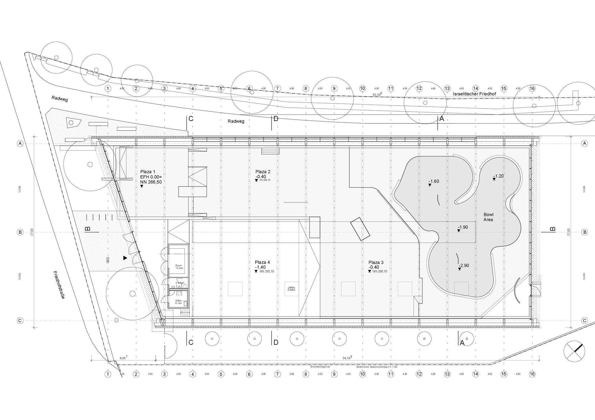
پیست اسکیت Skaterhall طراحی شده توسط Herrmann + Bosch Architekten
Mahdis Noriani
تصاویر پروژه
دیگر پروژه های Mahdis Noriani
فروشگاه FENDI shop-in-shop
کافه Prompt طراحی شده توسط SAISA STUDIO
2050 coffee طراحی شده توسط TEKI Design
MORICO Café طراحی شده توسط Inrestudio
926 Craftsman Museum طراحی شده توسط TJAD Original Design Studio
Sage office طراحی شده توسط Morgan Lovell
CISHAN office طراحی شده توسط STUDIO8 Architects
Hakerem office طراحی شده توسط Anderman Architects
MAM Competence Center طراحی شده توسط INNOCAD
Wilson Dow Offices طراحی شده توسط Partners by Design
Deliveroo Offices طراحی شده توسط Oktra
Marie Curie building طراحی شده توسط Proof of the sum
Vialto Partners office طراحی شده توسط Woodalls
LinkedIn Office Design, Bengaluru
فروشگاه Gutteridge Corso Vittorio Emanuele Milano Flagship Store
پروژه های مشابه
تماس با ما
درباره ما
تمامی حقوق مادی و معنوی این سایت متعلق به معمارنو می باشد