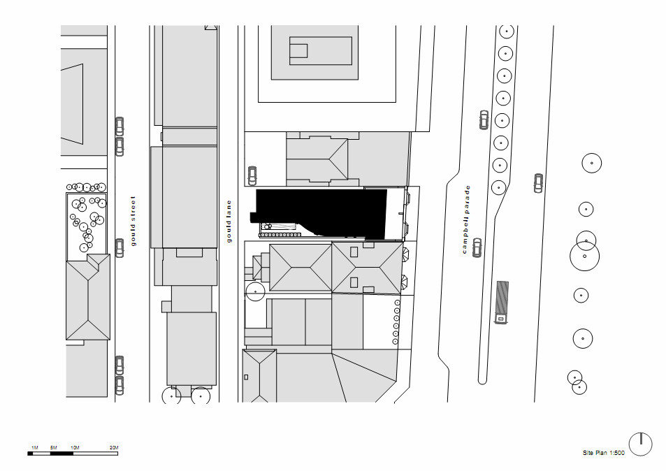
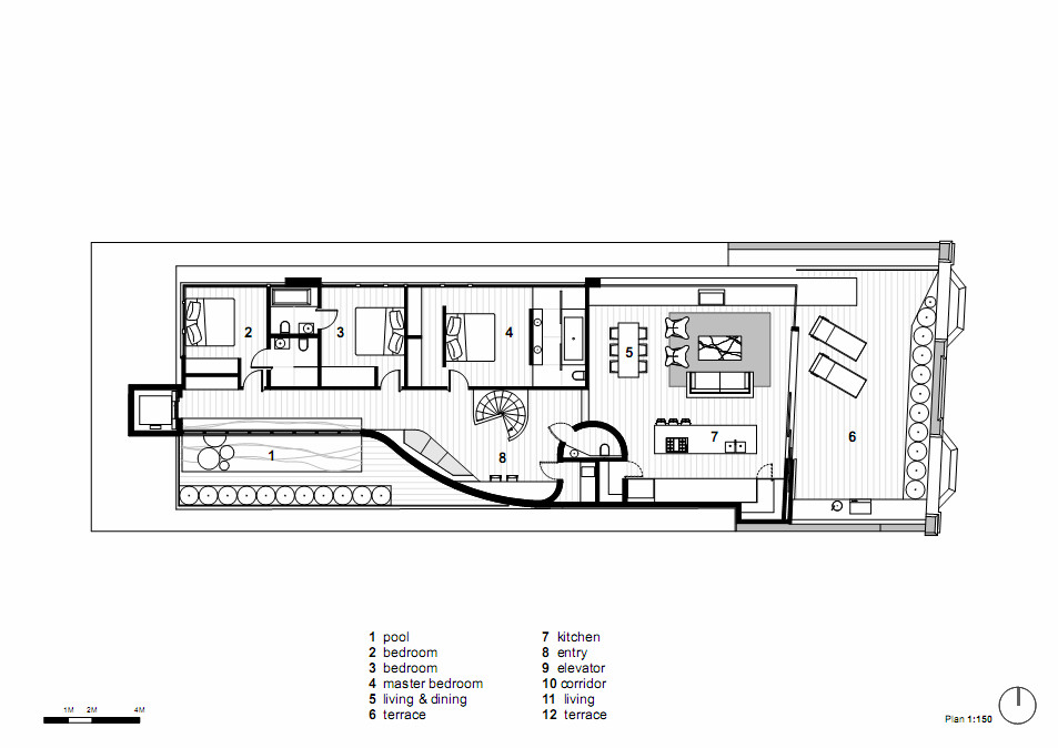
تصاویر پروژه
دیگر پروژه های Mahdis Noriani
پروژه های مشابه
پنت هاوس V31 in Amsterdam طراحی شده توسط zU-studio
Mahdis Noriani
پنت هاوس Panorama طراحی شده توسط Bureau Fraai
Mahdis Noriani
پنت هاوس South Villa طراحی شده توسط ARRCC
Mahdis Noriani
پنت هاوس Penthouse in Magdalena طراحی شده توسط Taller David Dana
Mahdis Noriani
پنت هاوس JMF Residence طراحی شده توسط Ivan Rezende Arquitetura
Mahdis Noriani
پنت هاوس PANO طراحی شده توسط Ayutt and Associates desi
Mahdis Noriani
پنت هاوس Penthouse Las Palmas طراحی شده توسط Benthem Crouwel Architects
Mahdis Noriani