Head In The Clouds طراحی شده توسط STUDIO DOHO

شانگهای
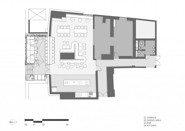
Head in the Clouds یک ایده رستورانی برای صبحانه تمام روز در شانگهای است که برای دوستداران غذا و خیال پردازان ایجاد شده است. این یک مکان آرام برای لذت بردن از غذاهای خوشمزه و فریبنده است، در حالی که آرامش و غوطه ور شدن در لحظه است. مفهوم طراحی به موسیقی کلاسیک اشاره دارد، زیرا صاحب آن موسیقیدانی است که علاقه زیادی به نوار کاست دارد. یک دیوار ویژه به نوارهای کاست قدیمی مالک اختصاص داده شده است، فرصتی برای او برای نمایش و پخش مجموعه نوارهای کاست خود. برای تکمیل این مفهوم موسیقی و غذا، DOHO یک سبک صنعتی خام را با جدا کردن سایت موجود ایجاد کرد تا دیوارها و ستون های بتنی باربر موجود را در معرض دید قرار دهد. این پس‌زمینه صنعتی با فلزات اسیدی و شیشه‌های رنگ‌آمیزی برجسته‌تر شد.

پروژه های مشابه

Head In The Clouds طراحی شده توسط STUDIO DOHO | معمار نو